Фильтроэлемент 3ФГС 80
Оставить отзыв
Есть в наличии
Безопасность и конфиденциальность
✓ Сертифицированное оборудование
✓ Гарантия надежной эксплуатации
Гарантия доставки
✓ Контроль качества на каждом этапе
✓ Современное оборудование
✓ Быстрая отгрузка
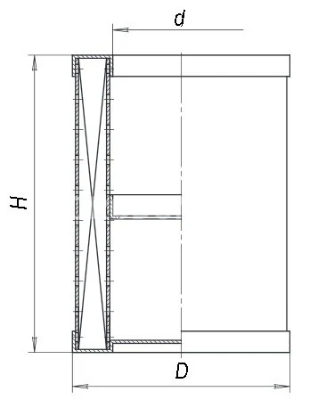
Технические характеристики:
Условный проход, мм: 95
Тонкость фильтрации, мкм: 80
Номинальный расход л/мин:
Масса , кг.:

Гофрированные сетчатые фильтр-элементы типа ФГС используются для очистки масла в гидравлических и смазочных системах. Элементы изготовлены из бронзовой или нержавеющей сетки с точностью фильтрации 40, 80, 120 и 160 мкм и имеют верхний слой из более крупной сетки. Разрешённое перепад давления составляет 0,63 МПа.
Фильтр-элементы устанавливаются в корпус фильтра ФГМ по соответствующим типоразмерам.